AlexanderVasilev писал(а):Philipp писал(а):AlexanderVasilev писал(а):Уважаемые соседи, подскажите пожалуйста:
1. У нас двухкомнатная распошонка. Кто-нибудь делал разделение гостиной для увеличения кухни? Т.е. кухня станет буквой «г» за счёт уменьшения гостиной с возведением стены разделяющей гостиную на две комнаты.
2. Где провод звонка во входную дверь?
3. У всех вводной электрический кабель к автоматам без изоляционной оболочки(т.е. в гофре идут отдельные провода)?
4. В УК при выдаче ключей сказали, что за бункер 10000 с нас. Это со всех у кого квартиры без отделки такой взнос требуют?
5. Меняли ли вы трубы для отопления и водоснабжения от застройщика? В смысле какого они качества?
1. Не могу представить как Вы хотите сделать разделение гостиной. Можете нарисовать?
0dc201a0-1b56-4912-a2f2-0adff92ed9ba.jpg
2. Звонок у Вас в квартире должен быть подключен.
3. -
4. Вы ремонт делать будете?! Мусор строительный будет?! Соответственно нужен контейнер! Вы можете сами нанять контейнер, можете заплатить УК за эту услугу - как проще и выгодней Вам так и делайте!
Единственный момент - складирование строительного мусора на контейнерных площадках внутри дома не допускается!
5. Трубы ХВС, ГВС менять, электрику менять, Отопление стоит REHAU - проверить!
Филипп,
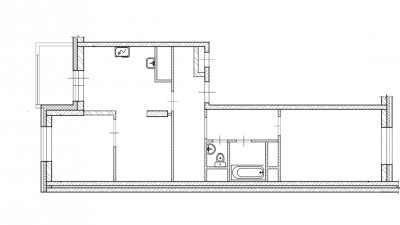
1. Не могу представить как Вы хотите сделать разделение гостиной. Можете нарисовать?
Вот нарисовал: красным отмечено где снести стену, зелёным где возвести, коричневым где будет межкомнатная дверьПеределка 2х комнат в 3 комнаты.jpg
Даже не знаю

